Poznań Grunwald, Wolsztyńska
7 500,00 PLN
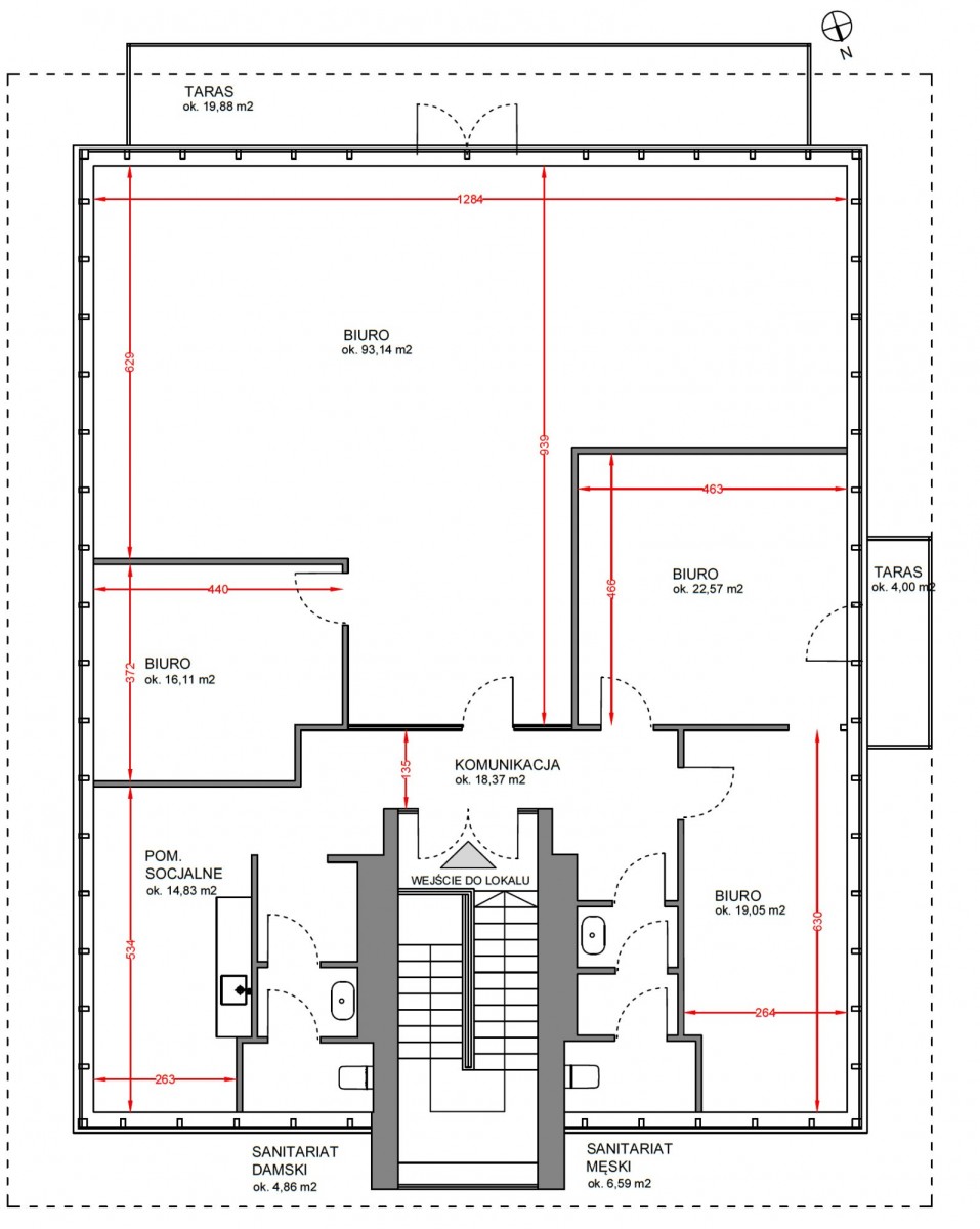
Biuro na wynajem , 195,50 m2
38,36 PLN /m2
Powierzchnia
195,50 m2
Liczba pokoi
5
Rok budowy
1930

Dane nieruchomości:

Numer oferty: 34964545761
Powierzchnia: 195,50 m2
Liczba pokoi: 5
Piętro/Pięter 3 z 3
Rok budowy: 1930
Ogrzewanie: gazowe
Cena za m2: 38,36 PLN
Cena: 7 500,00 PLN

Opis nieruchomości:

UNIKALNE BIURO W ARTYSTYCZNEJ VILLI GREY

Klimatyzowane biuro | Parking | Open space + gabinety | Doskonała lokalizacja


Przedstawiamy wyjątkową ofertę najmu powierzchni biurowej w odrestaurowanej kamienicy z lat 30. przy ul. Wolsztyńskiej 5. Budynek Villa Grey to prestiżowy adres łączący klimat przedwojennej elegancji z nowoczesnymi udogodnieniami. Powierzchnia 195,5 m² została zaprojektowana z myślą o firmach ceniących komfort, przestrzeń i doskonałe doświetlenie naturalnym światłem.

*****

ROZKŁAD POMIESZCZEŃ I STANDARD:

Lokal znajduje się na 3. piętrze (wejście schodami) i oferuje funkcjonalny podział przestrzeni:
* Strefa pracy: 3 niezależne, ustawne gabinety idealne na spotkania lub pracę w ciszy,
* open space: imponująca, otwarta przestrzeń o powierzchni ponad 90 m², dająca szerokie możliwości aranżacyjne,
* zaplecze: gotowy do użytku aneks kuchenny oraz dedykowane toalety (damska i męska) na piętrze,
* wyposażenie: biuro jest nieumeblowane, co pozwala na dowolną aranżację pod potrzeby najemcy. Pomieszczenia są w pełni klimatyzowane i wyposażone w energooszczędny system ogrzewania,
* lokal posiada 2 niezależne duże tarasy.


LOKALIZACJA:

Villa Grey mieści się w prestiżowej, willowej części Poznania - na Grunwaldzie. Lokalizacja ta gwarantuje szybkie połączenie z:
* Międzynarodowymi Targami Poznańskimi (MTP) i Dworcem Głównym,
* lotniskiem Ławica oraz wjazdem na autostradę A2,
* centrum miasta przy zachowaniu kameralnej atmosfery okolicy,
* budynek jest w pełni chroniony elektronicznym systemem alarmowym oraz monitoringiem.


DODATKOWE INFORMACJE:

* Miejsca parkingowe: 2 dedykowane miejsca na terenie posesji (250 zł netto/miejsce).
* Media: Rozliczane według faktycznego zużycia (liczniki).
* Dodatkowo opłaty: serwis pomp ciepła+mycie okien.
* Dostępność: Biuro dostępne od zaraz.


Serdecznie zapraszam na prezentację tego wyjątkowego miejsca!

Skontaktuj się z agentem :
Sylwester Rosa

Telefon : 601207656

biuro@panorama.nieruchomosci.pl


Lokalizacja: